SUBTLY STRIKING - HOME
HOME
SUBTLY STRIKING - HOME
PLANS
MATERIALS
CONTACT
BACK TO SHOWROOM
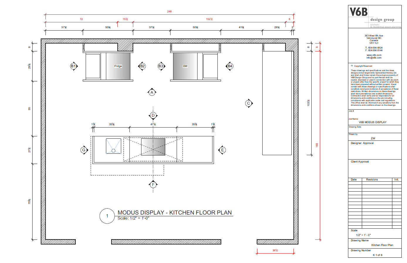
Subtly Striking – Modus Kitchen Plans
No items found.
Coming Soon